FLOOR PLANS and availability

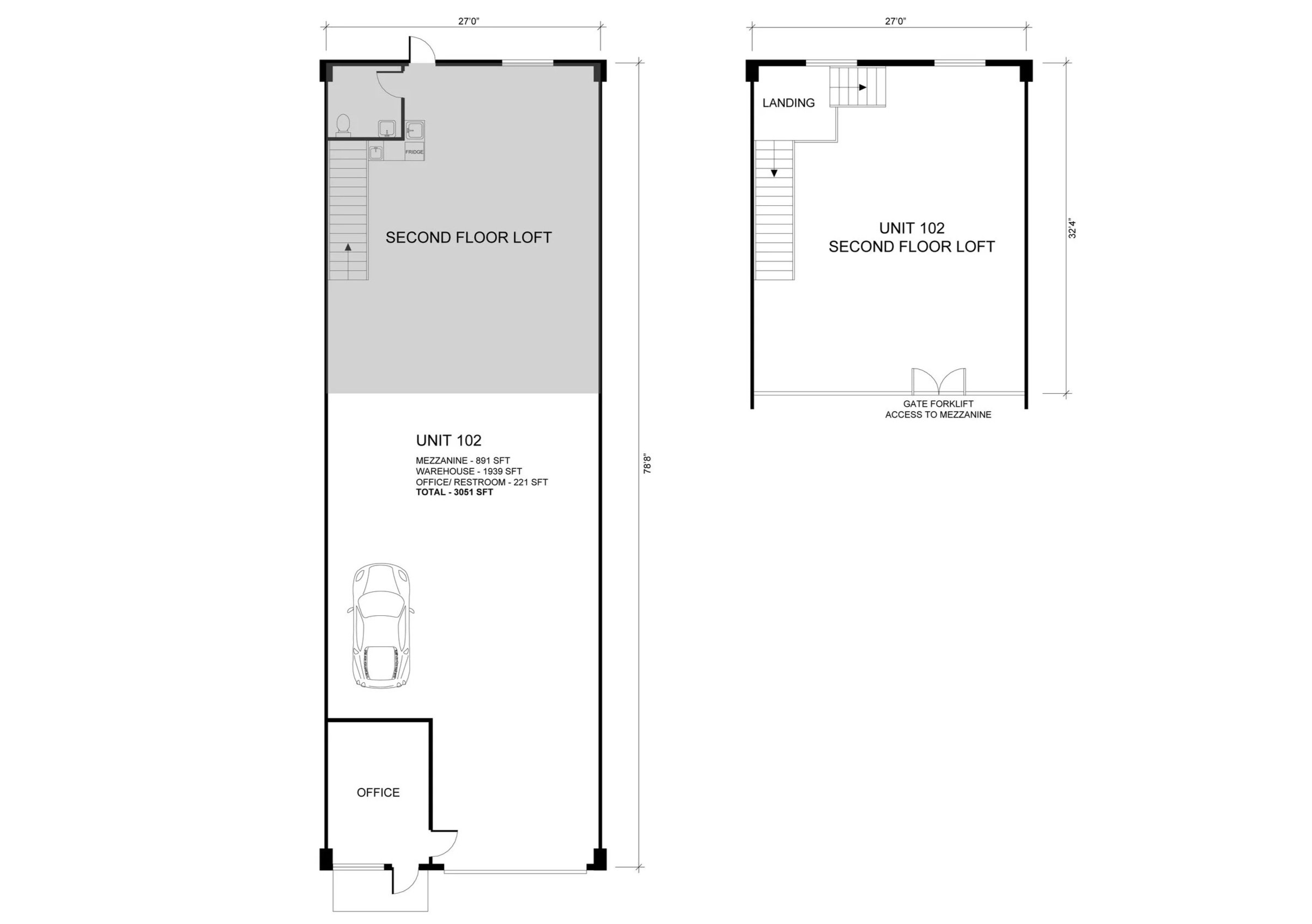
Units 101–106. Now pre-leasing #102

Square Footage: 3,050 SF each. These units are all in the north building.

Units 107–110. Now pre-leasing #108

Square Footage: ~2,500 SF each. These are in the south building on its northern half.

Units 111 –112

Square Footage: 2,565 SF each. These are in the south building.

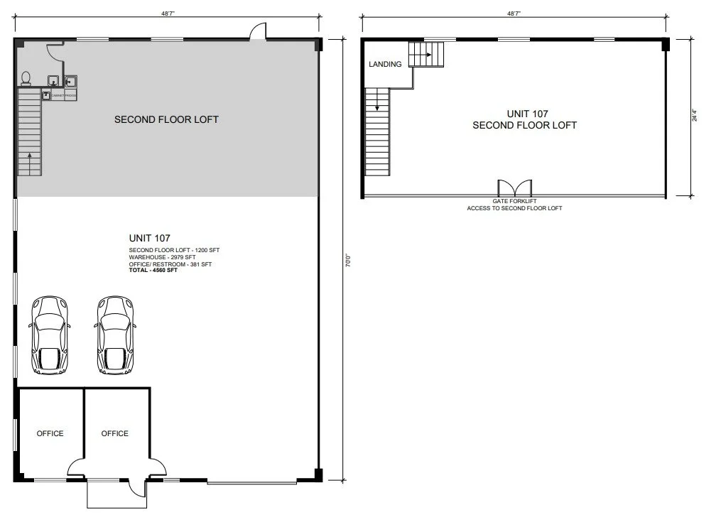
Unit 114. Now Pre-leasing this space.

Total Square Footage: 4,560 SF. This unit is at the southern end of the south building.

Ready to Learn More?

Visit us at 4206/4216 Concept Ct, Lakewood Ranch, FL to see how your vision fits inside Lakewood Warehouses.

📞 Call: 941.786.0629
📧 Email: office@lwrwarehouses.com

Pricing/Contact